Роскошное убранство квартиры или дома являет собой неизменный предмет гордости его обитателей. Строго выдержанный стиль, безупречное сочетание всех элементов декора, креативные дизайнерские решения, непревзойденный комфорт… Хотите, чтобы картинки из глянцевых журналов с восхитительным интерьером стали реальностью для вас? Специалисты нашей компании знают, как исполнить вашу мечту
Если вы запланировали проведение ремонтных работ в своем жилище, то первым делом необходимо уделить максимальное внимание планированию вашего будущего интерьера. Доверьтесь профессиональным дизайнерам нашей компании, и мы воплотим в жизнь любые ваши задумки. При желании вы можете принимать активное участие в процессе разработки дизайн-проекта. Давайте творить вместе!
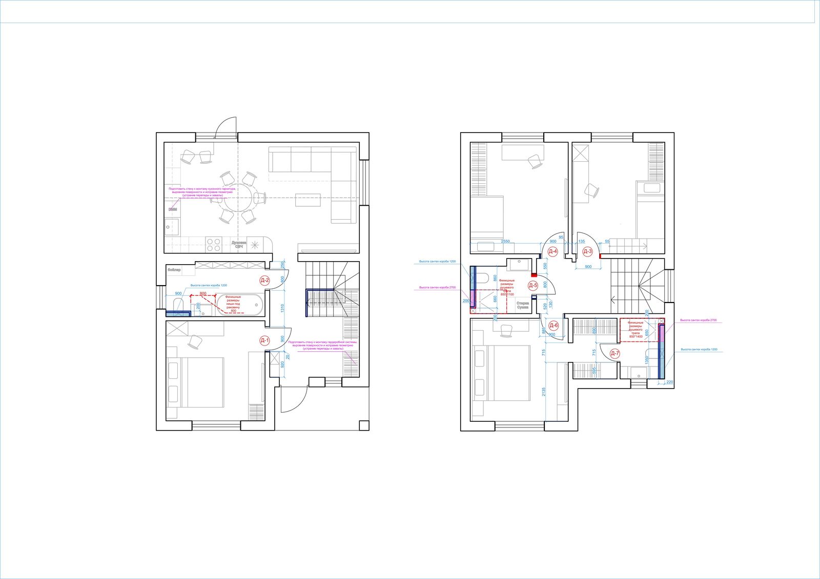
ДИЗАЙН ДОМА В ПРИГОРОДЕ КАЗАНИ
Как мы создаем дизайн вашего интерьера?
- Выслушаем, расскажем, покажем, учтём! Мы приглашаем вас в наш комфортабельный офис для проведения предварительной беседы. Разговаривая с нашим дизайнером за чашечкой ароматного кофе, вы сможете не только поделиться с нами своими идеями и задумками, но и узнать много интересного! Мы расскажем вам о том, что сегодня актуально в мире дизайна интерьера, поделимся удивительными фактами, покажем фото готовых работ и, конечно же, дадим развернутые ответы на все ваши вопросы. Даже если ранее вы не могли себе представить, каким вы хотите видеть ваш дом, то после посещения нашего офиса, картинка в вашем воображении окончательно сложится!
- Разработка дизайна – совершенство достижимо! Наши дизайнеры предложат вам несколько эксклюзивных вариантов интерьера, разработанных специально для вас. За каждым нашим клиентом закрепляется персональный дизайнер из нашей студии. Наши дизайнеры работают в различных направлениях и стилях, поэтому вы непременно найдете того специалиста, который сможет всецело удовлетворить все ваши требования. Главная цель нашей компании – счастливый клиент, поэтому мы готовы неустанно работать до тех пор, пока не достигнем идеального результата. Не стесняйтесь говорить нам о своих пожеланиях, помните, в вопросах дизайна интерьера не бывает мелочей!
- Лучше один раз увидеть, чем сто раз представить! Как насчет того, чтобы прогуляться по вашей обновленной квартире еще до проведения ремонтных работ? Специально для вас наш дизайнер создаст реалистичную 3D-модель вашего интерьера, которая позволит вам получить максимально точное представление о том, как будет выглядеть ваше жилище. Смотрите, оценивайте, вносите коррективы и давайте нам обратную связь: в процессе создания дизайна мы будем прислушиваться к каждому вашему слову. Для ознакомления с примерами наших работ, вы можете совершить 3D-тур по уже реализованным специалистами нашей компании эксклюзивным интерьерам.
- Фиксированная стоимость и полный контроль! При обращении в нашу компанию, за вами будет закреплен личный менедежер, с которым вам будет максимально комфортно общаться и работать, для осуществления контроля качества всех предоставляемых услуг. После создания дизайн-проекта вашего интерьера мы проведем расчеты, чтобы вы могли точно знать, в какую сумму вам обойдется его реализация. После заключения с нашей компанией договора на проведение ремонтно-отделочных работ, оговоренная заранее стоимость не изменится. С нами вы защищены от лишних расходов!
- Реализация дизайн-проекта. Дизайн интерьера, оформленный в виде дизайн-проекта, является одной из главных гарантий качества ремонта. Доверив его реализацию нашей компании, вы можете быть полностью уверены в том, что все работы будут выполнены исключительно квалифицированными специалистами при четком соблюдении установленных сроков.
Почему стоит заказать дизайн интерьера в компании «Три А»?
- Мебель и техника по ценам ниже рыночных! Мы тесно сотрудничаем с известнейшими поставщиками элитной мебели, бытовой техники и оборудования, поэтому, приобретая предметы интерьера через нашу компанию, вы получаете значительную экономию. Наши специалисты будут сопровождать вас при посещении шоу-румов и мебельных салонов, и даже отправиться с вами в зарубежные страны с целью приобретения эксклюзивной дизайнерской мебели. Мы сами найдем самые выгодные предложения для вас, убедимся в качестве всех ваших покупок, а также договоримся о максимально быстрой доставке и разгрузке. Не тратьте свои время и нервы понапрасну: наша компания позаботится обо всем!
- Больше, чем вы ожидали! Идеальный дизайн квартиры – это не просто план отделочных работ. В процессе его разработки, наши профессионалы учтут пожелания всех членов вашей семьи, а также все особенности вашего жилища. Мы правильно организуем освещение, определим лучшее место для установки аквариумов, гармонично впишем домашний кинотеатр в декор вашей гостиной. Вам незачем обращаться в другие компании для того, чтобы подключиться к Интернету или установить систему безопасности: мы все сделаем сами, вам нужно только рассказать нам о своих желаниях!
Сроки
- При создании интерьера квартиры или дома мы всегда ставим себе реальные сроки для того, чтобы удовлетворить все ваши пожелания и требования. Тем не менее, наша компания действительно ценит ваше время, поэтому мы стараемся выполнить свою работу максимально быстро. Минимальный срок, требуемый для проектирования интерьера, составляет всего один месяц.
